Архитектура и строительство
-
Точные срокиСдаем проект, не нарушая обговоренные сроки. Никаких долгостроев
-
Фиксированная сметаСмета не меняется на протяжении всей работы. Никаких дополнительных затрат
Нам доверяют самое главное — разработку проекта дома и его строительство. А мы в свою очередь гарантируем достойный результат — уютное, эргономичное и комфортное жилье для Вас и Вашей семьи!
Встреча с архитектором
Если вам нужна помощь – приходите на личную встречу, на которой мы с радостью поможем реализовать все ваши желания.
Вот почему одна встреча заменяет десяток телефонных разговоров:
- Прорабатываем идею интерьера
- Консультируем по интересующим вас вопросам
- Рассчитываем предварительную смету на все виды работы
- Покажем портфолио
Разработка проектной документации
Проектная документация — ключ к пониманию между всеми сторонами рабочего процесса. Грамотно и тщательно проработанные чертежи снижают риски в ходе самого проекта, упрощают и декомпозируют комплексные задачи, помогают достичь того результата, который вы задумали.
Архитектурный проект
Архитектурный проект призван как можно более детальнее описать и объяснить все инженерные или декоративные решения, основываясь на общепринятых нормативах и стандартах.
Что вы получите:
- Объяснительная записка.
- План и схема земельного участка
- Список инженерного оборудования
- Организация и план рабочего процесса
- Строительная смета
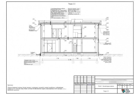
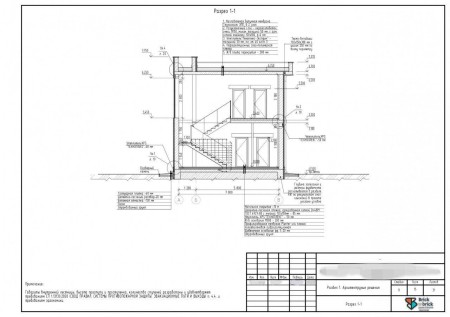
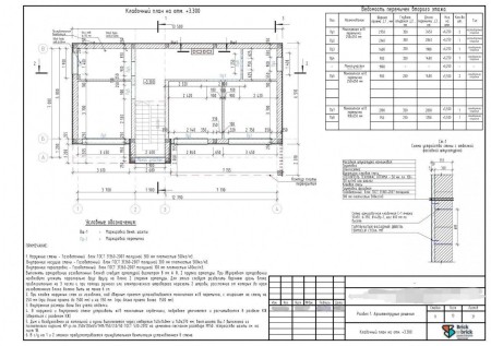
Конструктивный проект
Пожалуй, это самый важный раздел проектной документации, так как он включает чертежи фундамента, перекрытий, несущих конструкций крыши, колонн, столбов, армопоясов, балок, ригелей, лестниц.
Что вы получите:
- Чертежи по железобетонным конструкциям
- Чертежи по металлическим конструкциям
- Чертежи по деревянным конструкциям
Инженерный проект
Если вам необходимо продумать сложную систему электроснабжения, канализации или вентиляции, то дизайнер будет работать вместе с инженерами, а для этого требуется инженерный проект.
Что вы получите:
- Данные по водоснабжению и канализации
- Полная документация по отоплению
- Подробный план по электроснабжению
Что еще мы можем предложить?
Полностью комплектуем
Мы тщательно следим за тем, чтобы материалы доставили в необходимом количестве и вовремя.
Выдаем ведомость строительных и отделочных материалов, в которой указаны количество и ссылка на каждую позицию.
Мы также гарантируем: организацию приемки материалов на объекте; проверку товаров по брак; в случае обнаружения дефекта, производим замену.
Строим
Занимаемся всеми видами работ:
- Устройство фундамента, кладка стен;
- Фасадные работы, устройство кровли и дымоходов;
- Монтаж систем отопления, водоснабжения, водоотведения;
- Все виды отделочных работ;
- Ландшафтный проект: мощение дорожек, устройство водоёмов, озеленение участка.
Дизайн интерьера
Создаем современные и продуманные дизайн-проекты для ценителей эстетики и комфорта в формате all inclusive
Отделочные работы
Реализуем полный комплекс отделочных работ, чтобы сберечь ваши время и нервы! Наш подход — это строгое следование технологическим и производственным стандартам на протяжении всей работы.
Ландшафтный дизайн
Экономим ваше время, забирая на себя хлопоты по планированию и зонированию территории. Подбираем растения, подходящие к условиям Вашего участка, и соответствующих Вашим пожеланиям.
Завершающий штрих – реализация проекта
При строительстве дома мы руководствуемся тремя важными аспектами: качество, эстетика и удобство. А все наши строительные решения экономически просчитаны и проверены опытным путём.
Благодаря детальной разработке проектной документации мы соблюдаем все строительные нормы, ведь они разработаны для надежности строений и безопасности наших клиентов.
Хотите увидеть примеры наших чертежей?
Лучше один раз увидеть, чем сто раз услышать. Именно поэтому предлагаем Вам ознакомиться с нашими работами, в которых мы подробно отображаем все мелочи, чтобы добиться идеального результата.
